Назад
Блок 1.2
1 1 20
Антресоль АБК
Производственная площадь

Light Industrial

AFI ПРОМ Алтуфьево – индустриальный кластер для малого и среднего бизнеса

Стоимость

по запросу

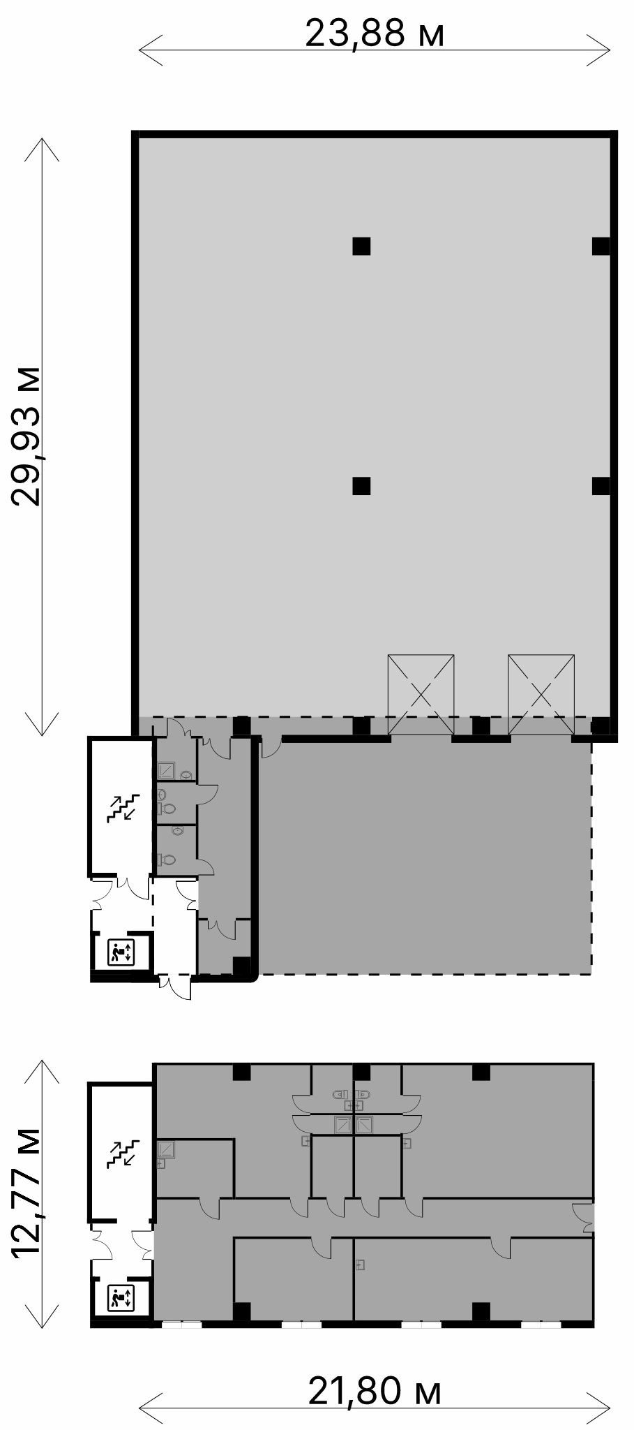
Общая площадь

1020.1 м²

Производственная площадь

755.5 м²

Антресоль

264.6 м²

Количество ворот

2

Поделиться в соцсетях
VK
Telegram
WhatsApp

Общая площадь

1020.1 м²

Производственная площадь

755.5 м²

Антресоль

264.6 м²

Количество ворот

2

Поделиться в соцсетях
VK
Telegram
WhatsApp
Связаться с нами
Время звонка
  • В ближайшее время
  • 09:00-10:00
  • 10:00-11:00
  • 11:00-12:00
  • 12:00-13:00
  • 13:00-14:00
  • 14:00-15:00
  • 15:00-16:00
  • 16:00-17:00
  • 17:00-18:00
  • 18:00-19:00
  • 19:00-20:00
  • 20:00-21:00
Ваша заявка
принята