Назад

Блок 3.14

1 1 20
Антресоль АБК
Производственная площадь

Light Industrial

AFI ПРОМ Алтуфьево – индустриальный кластер для малого и среднего бизнеса

Стоимость

206 143 000 ₽ 245 000 ₽/м²

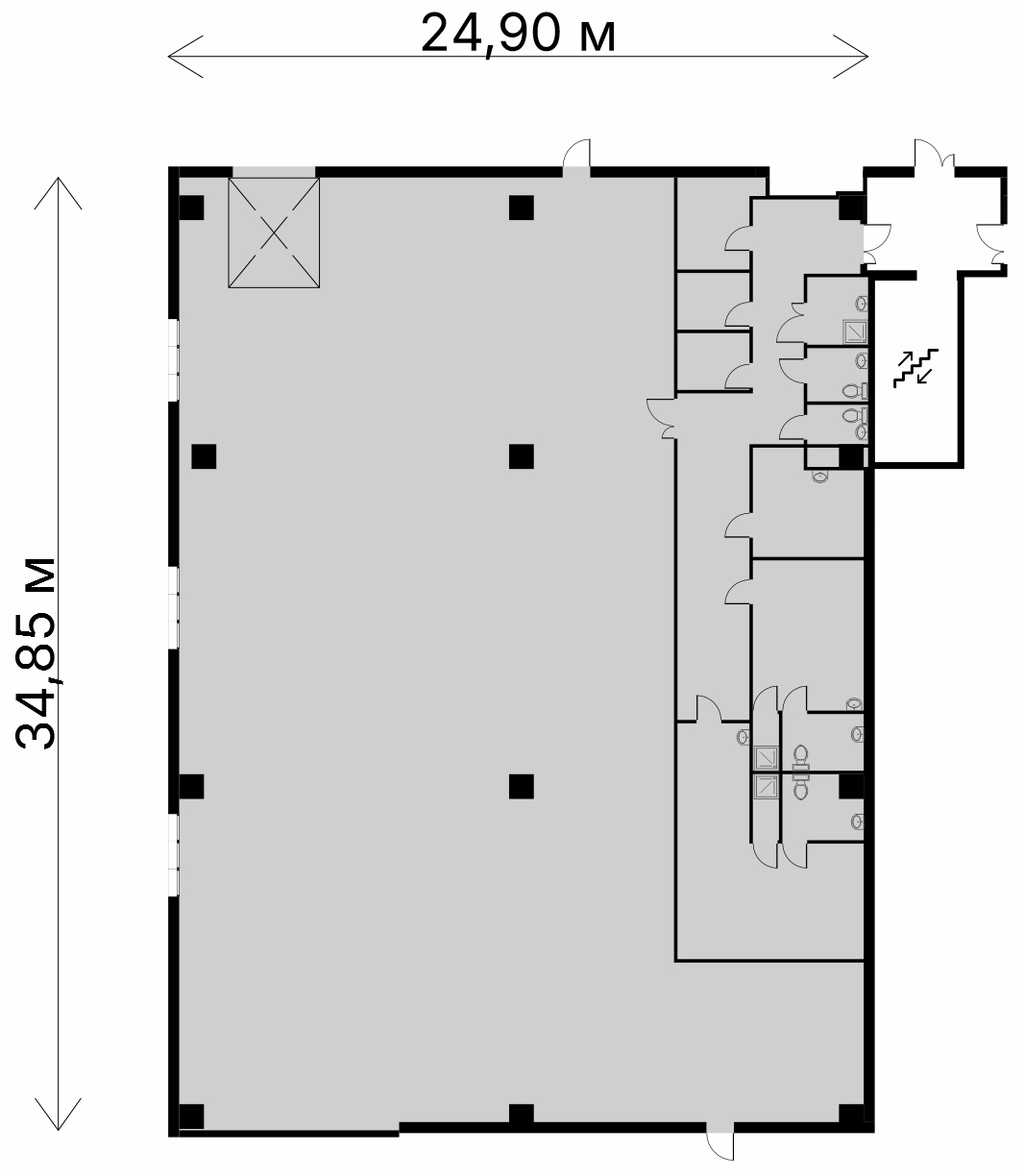
Общая площадь

841.4 м²

Производственная площадь

840.8 м²

Антресоль

0 м²

Количество ворот

1

Нагрузка на пол

1.5 т/м²

Высота потолков

7 м

Готовность

III кв. 2026 года

Парковка для легкового транспорта

Есть

Парковка для грузового транспорта

Есть

Поделиться в соцсетях
VK
Telegram
WhatsApp

Общая площадь

841.4 м²

Производственная площадь

840.8 м²

Антресоль

0 м²

Количество ворот

1

Нагрузка на пол

1.5 т/м²

Высота потолков

7 м

Готовность

III кв. 2026 года

Парковка для легкового транспорта

Есть

Парковка для грузового транспорта

Есть

Поделиться в соцсетях
VK
Telegram
WhatsApp
Связаться с нами
* - обязательное поле
* - обязательное поле
Время звонка
  • В ближайшее время
  • 09:00-10:00
  • 10:00-11:00
  • 11:00-12:00
  • 12:00-13:00
  • 13:00-14:00
  • 14:00-15:00
  • 15:00-16:00
  • 16:00-17:00
  • 17:00-18:00
  • 18:00-19:00
  • 19:00-20:00
  • 20:00-21:00
Ваша заявка
принята